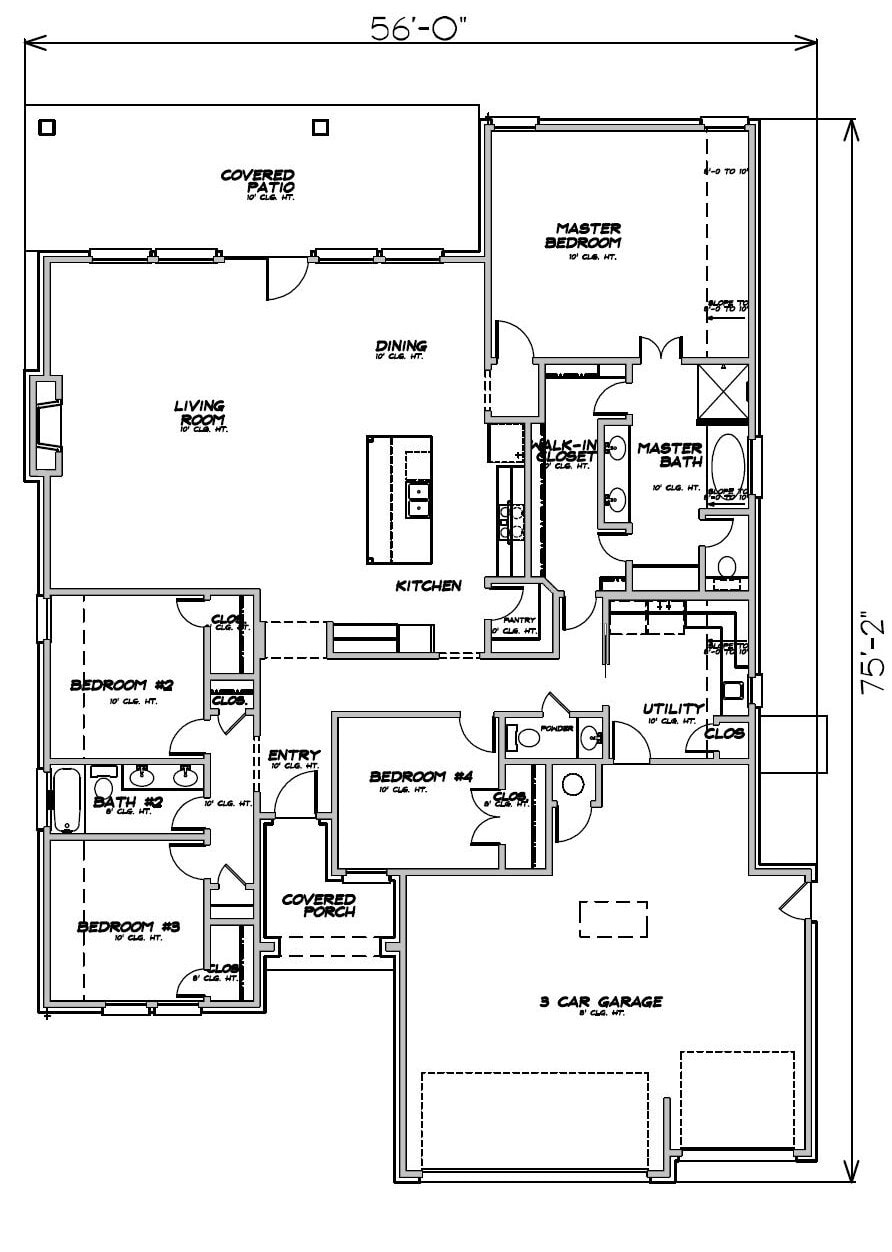
Bedrooms: 4
Bathrooms: 2.5
Stories: 1
SQFT: 2,464
Garages: 3-Car Garages
We enjoy customizing each home we build...we welcome any floorplan modifications!